Домкрат винтовой AMF № 6435S усиленный
Домкрат винтовой усиленный AMF № 6435S с быстрой плавной регулировкой с помощью латунного установочного винта.
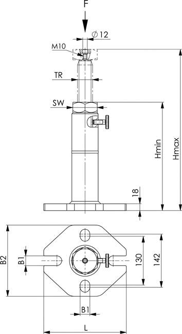
Центрирующее отверстие Ø12 мм.
Шпиндель в сборе:
Улучшенная сталь с трапецеидальной резьбой, вороненая шпиндельная головка.
Основная часть: окрашенная улучшенная сталь.
Применение:
Эти винтовые домкраты обеспечивают быстрое перемещение и плавную регулировку для всего диапазона высоты. Поворотом исполнительного кольца на 60° шпиндель фиксируется или деблокируется для быстрой регулировки.
Кроме того, шпиндель можно надежно зажать в выбранном положении с помощью установочного винта.
Для домкратов винтовых № 6438 подходят насадки 6440, 6441, 6442, 6443 и 6445.
Указание:
- зафиксировать шпиндель, макс. 6 кг
- ослабить установочный винт
- повернуть исполнительное кольцо
- установить нужную высоту

| № заказа | Размер | H min. | H max. | TR | B1 | B2 | L | SW | F max. [kN] | Вес [Kg] |
| 72637 | 300 | 200 | 300 | 40x7 | 26 | 190 | 220 | 65 | 80 | 8 |
| 72645 | 460 | 290 | 470 | 40x7 | 26 | 190 | 220 | 65 | 60 | 10 |
| 72652 | 750 | 430 | 750 | 40x7 | 26 | 190 | 220 | 65 | 50 | 13 |
| 72660 | 1250 | 710 | 1250 | 40x7 | 26 | 190 | 220 | 65 | 40 | 18 |

Ещё из раздела домкраты винтовые
Губки для низкого зажима, модель „Bulle" AMF № 6490Губки для низкого зажима, модель „Bulle" AMF № 6490 Улучшенная сталь, отпущенная с воронением. Упаковка: 2 в коробке в комплекте с крепежным винтом ISO 4762 (10.9), ... подробнее |

